首頁 > 房屋出售 > 誠昱/永康國小金店面
第一房屋仲介 - 誠昱/永康國小金店面

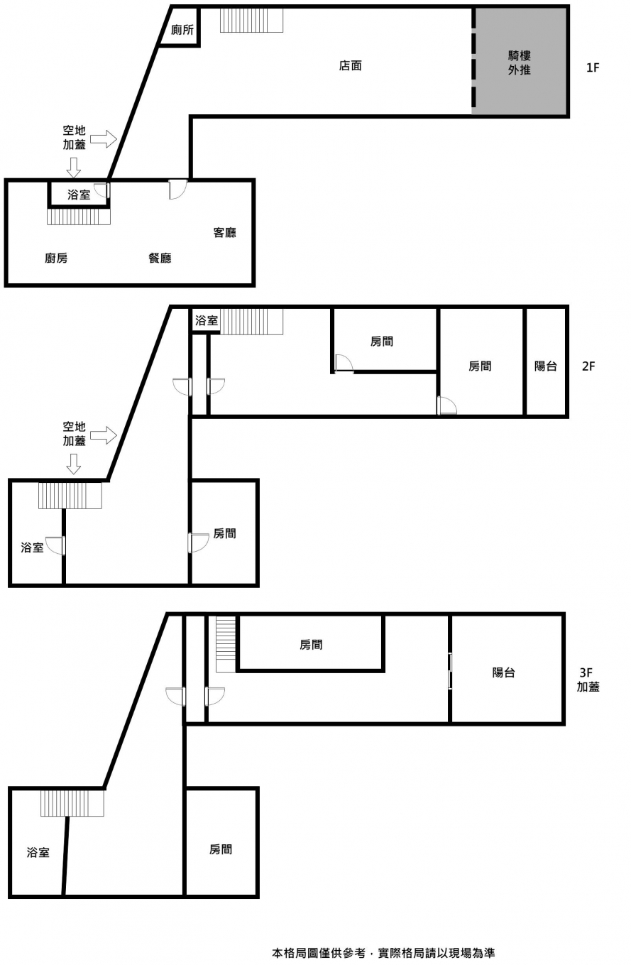
誠昱/永康國小金店面

店面      3688萬

系統編號

物件區域
710台南市永康區

物件地址
永康街

地坪
40.64 坪

總建坪
39.23 坪

室內坪數
39.23 坪

主建物坪
37.73 坪

附屬建物坪數
1.50 坪

車位
門口停車    

總樓層
2 樓

位於樓層
1~2 樓

格局
3房2廳5衛2陽台

房屋座向
座西朝東

採光面數
2 面採光

建物結構
加強磚造

建築完工
1983年 屋齡約42年

臨路寬度
約12 米路

鄰近市場
永康市場

鄰近學區
永康國小

公園綠地
探索公園

特色說明
1.近永康國小、國中
2.可做補習班,白天出租攤販,人潮就是錢潮

※以上資訊如有記載錯誤,一律依謄本登記簿為準

 - 誠昱/永康國小金店面
 - 誠昱/永康國小金店面
 - 誠昱/永康國小金店面
 - 誠昱/永康國小金店面
 - 誠昱/永康國小金店面
 - 誠昱/永康國小金店面
推薦物件...

誠昱/戀戀沙崙綠竹筍農地

誠昱/戀戀沙崙綠竹筍農地
1280 萬

誠昱/新營達觀五福全新車.

誠昱/新營達觀五福全新車.
1440 萬

誠昱/復興學區高登健身優.

誠昱/復興學區高登健身優.
598 萬

誠昱/大灣富強黃金透店住

誠昱/大灣富強黃金透店住
2450 萬

誠昱/精華地段平價大3房

誠昱/精華地段平價大3房
958 萬

誠昱/史博館3房車位

誠昱/史博館3房車位
1438 萬

誠昱/近科工都內農地

誠昱/近科工都內農地
2588 萬

誠昱/安定南科整新傳統車.

誠昱/安定南科整新傳統車.
1198 萬


更多..
地圖
分享到臉書